Email:
电话:
产品中心
公司主要生产有:智能化输配电及控制设备、高低压成套电气设备。主要产品有:电能计量箱、综合配电箱JP柜、避雷器、高压熔断器、低压漏电断路器真空断路器、电器元件等

产品中心 - SXS2 三相二表位计量箱(PC+ABS)

所属小类:电表计量箱
电话:0577-63385333
邮箱:
地址:浙江省温州瓯江口产业集聚区灵展路988号
产品参数
联系我们
在线留言
产品参数
主要配置:
○ 此方案为样品,订货配置可另行说明
○ 总开关可适装3级125A塑壳断路器:
○ 表前可适装3级63A隔离开关、分线盒;
○ 表后可适装3级63A微型断路器:
○ 电能表可适装16mm’以下所有铜铝电线;
○ 表箱可装Ⅱ型采集器。
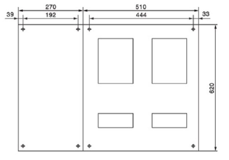
安装尺寸图:

在线留言
SEND MESSAGE
相关产品
高压开关柜
低压开关柜
配电箱/补偿柜
箱式变电站
电缆分支箱
电表计量箱
高压断路器开关
小型断路器
塑壳断路器
剩余电流动作断路器
耐张杆用绝缘子
复合外套避雷
跌落式熔断器
Copyright @ 辰通智能电气有限公司 All Rights Reserved